Leckie Drafting Services Inc. follows a clear, standardized process developed through years of residential permit drawing work.
This structure keeps projects moving efficiently and minimizes delays during permit review.
THE PROCESS
1. Project Information Provided
You provide:
- A sketch, reference plan, or concept layout
- Basic project details (location, size, intended use)

These items are used as a starting point for development into Ontario Building Code–compliant, permit-ready construction drawings.
For additions or decks, on-site measurement may be required depending on location and scope.
2. Preliminary Drawings Issued
A preliminary set of permit drawings is prepared based on the information provided.

These drawings follow a standardized layout and format used for all projects.
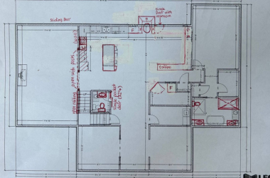
3. Client Markup & Review
You review the preliminary drawings and:
- Mark up required changes directly on the drawings
- Return them for revision

This markup-based process keeps revisions clear, efficient, and focused.
4. Revisions Completed
Revisions are completed based on the marked-up drawings.
The intent is to finalize the design efficiently, without extended design iterations or exploratory revisions.
5. Final Permit Drawings Issued
Once revisions are complete and final payment is received, the final permit drawing package is issued.

WHAT YOU RECEIVE
Upon completion, you will receive:
- PDF set of finalized permit drawings
- Schedule 1 – Designer Information
- Energy Efficiency Design Summary (EEDS)
These documents are prepared for submission to your local building department.
HOW THE DRAWINGS ARE USED
The permit drawings are typically provided to:
- Municipal building departments for permit review
- Truss and floor system suppliers for structural layouts
- HVAC contractors for heating and cooling design
- Plumbing and electrical contractors
- Septic designers (when applicable)
Each consultant designs their portion of the project using the permit drawings as a base.
STANDARDIZED DRAWING FORMAT
All projects follow the same standard drawing layout and organization.
This consistency:
- Reduces municipal review time
- Minimizes clarification requests
- Helps inspectors review plans efficiently
The focus is on clarity, constructability, and code compliance.
REVISION POLICY
- Projects include a preliminary drawing phase intended for reasonable refinement of the proposed layout through client markups.
- Revisions that remain consistent with the original project scope and general layout are typically accommodated.
- Substantial changes to scope, size, or overall layout may require additional fees or a new preliminary drawing phase.
This approach allows layouts to be refined efficiently while maintaining clear project scope boundaries.
WHAT IS NOT INCLUDED
The following services are not provided as part of the permit drawing package:
- Site plans
- Septic design
- HVAC design
- Plumbing or electrical layouts
- Construction or project management
These services are typically completed by other qualified consultants or trades, each responsible for their own regulated scope of work.
IMPORTANT NOTES
- Approved permit drawings must be kept on site during construction
- All dimensions should be verified by the contractor prior to construction
- Any changes during construction must be reviewed before proceeding
NEXT STEPS
If your project aligns with this process and scope, please contact us to discuss your project details and timeline.
